Rekonstruktion der Grundrissgeometrien Schloss Herrenhausen, Hannover

Rekonstruktion Grundrissgeometrien „ Schloss Herrenhausen,,

 

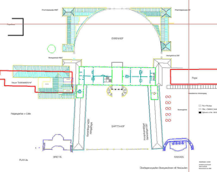
Im April 2000 begannen die Untersuchungen zur Rekonstruktion der Grundrissgeometrien des ehem. Schloss Herrenhausen. Aussagekräftige Bestandspläne standen nicht zur Verfügung. Ein Großteil der Planungsunterlagen wurde beim Brand des Archivs Ende des Krieges vernichtet. Als Grundlage der Arbeit dienten zunächst Kopien der Entwurfszeichnungen von G.L.F. Laves. Durch Vervielfältigung der ohnehin schwer lesbaren Pläne sowie Abbildungen auf unterschiedlichen Materialien waren die Pläne nur bedingt verwertbar. Hinzu kamen Divergenzen resultierend aus Materialverzug. Unklare Maßstäbe wie Zoll- bzw. Fußmaße erschwerten das Vorgehen. Einzige geometrische Anhalte boten die noch erhaltenen Überreste des Ehrenhofs, der Schlossmauer, Kaskade, Grotte sowie das Tor zum großen Garten. Mittels eines Lasergestützen Aufmaßes vor Ort wurden diese „Passpunkte“ genau vermessen und dienten somit als Grundlage für weiteres bearbeiten. Die Lavespläne wurden eingescannt, vektonsiert und in einem CAD- Programm so aufbereitet, dass sie über das Passpunktnetz entzerrt werden konnten.

Mehrere unterschiedliche Grundriss varianten wurden auf dieselbe Art in einem „quasi Iterativen Prozess „ über das Passpunktnetz dazu orientiert. Unterschiedliche Maßstabsangaben erschwerten diesen Prozess so, dass Nachmessungen vor Ort erforderlich waren. Am Ende konnten Bauezichnungen entwickeltwerden die dem Nachbau des heutigen Schlosses in Hannover zu grunde lagen.

 

Druckversion | Sitemap
© ARCHItektur + TECHnik

Diese Homepage wurde mit IONOS MyWebsite erstellt.