Navigation aufklappen/zuklappen
Startseite
Leistungen
Bauplanung
Bauleitung
Klimagerechte Architektur Baubionik
Klimagerechte Architektur
Bionik
Leichtbau
+ + Aktuelles + + +
Beweissicherung 2022-2024 Neubau Erdgastransportleitung Elbmarsch
Beweissicherung BAB A30 Tunnelbau Hahnenkamp
Buchprojekt Nachhaltiges Bauen
Leistungen
Gebühren/Honorar
Untersuchungsmethoden
Bauthermografie
Inspektionsdrohnen
Digitale Bestandsaufnahme
Architekturbüro
Neue Seite
Bauen im Bestand
Hannover Pelikanstrasse
Langenhagen Verdichtetes Bauen
Hannover Wohhauserweiterung
Hannover Steintorfeldstrasse
Hannover Hohenzollernstrasse
Hannover Wedekindstraße
Hannover Waldheim
Langenberg Schmiede
Hannover Bothfeld
Denkmalpflege/Sanierung
Kleiner Brunnen Rodenberg
Revitalisierung Landarbeiterhaus
Nutzungsänderung Scheune
Modernisierung einer Hofstelle
Modernisierung Gutshaus
Modernisierung Hofstelle
Einzeldenkmal Hannover
Baudenkmal Industrieschornstein
Studie Dachgeschosswohnung
Hannover Contiwerke Limmer
Fachwerkkonstruktionen
Greitjenhof Zweiständerhaus Krelingen
Revitalisierung einer Hofstelle: Generationenprojekt
Entwurf Historisches Mühlenhaus
Hofstelle bei Walsrode
Werkstatt am Fluss
Umsetzung eines hist. Treppenspeichers
Nutzungsänderung Werkstatt
Modernisierung Zweiständerhaus
Rekonstruktion Schloss Herrenhausen
Revitalisierung Landarbeiterhaus
Gläserner Verbindungsbau
Revitalisierung Pfarrwitwenhaus
Nutzungskonzept Z CE
Nutzungsänderung Telegrafenturm
Wohnbauten
Projektentwicklung / Studien
Studie mobile Surf Station
Holzrahmenbau Pool Box
Entwurf Wohnhaus HV
Entwurf Bungalow HB
Doppelhaus KB
Stadthäuser
Doppelhaus
Schwimmbad
Einfamilienhaus
Nachhaltiges Bauen
Topthema: Klima
Bewertungssystem Nachhaltiger Wohnungsbau
Qualitätssiegel Nachhaltiger Wohnungsbau NaWoh 4.0
Sachverständigenbüro
Bauschadensgutachten
Projektsteuerung
SiGeKo Arbeitsschutz
Team/Qualifikation/Referenzen
Leitbild
Referenzen
Qualifikationen
Lebenslauf
Konfliktmanagement / Mediation im Bauprozess
Gebühren/Honorar
Mediation im Bauprozess
Ablauf einer Mediation
Der Konflikt
Kontakt
Impressum
Intern
Startseite
Klimagerechte Architektur Baubionik
+ + Aktuelles + + +
Leistungen
Gebühren/Honorar
Untersuchungsmethoden
Architekturbüro
Nachhaltiges Bauen
Sachverständigenbüro
Team/Qualifikation/Referenzen
Konfliktmanagement / Mediation im Bauprozess
Kontakt
Impressum
Intern
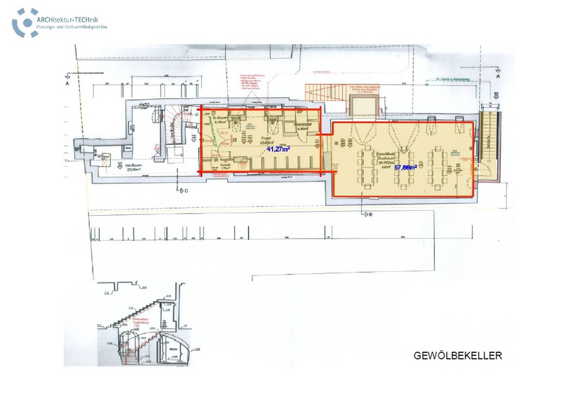
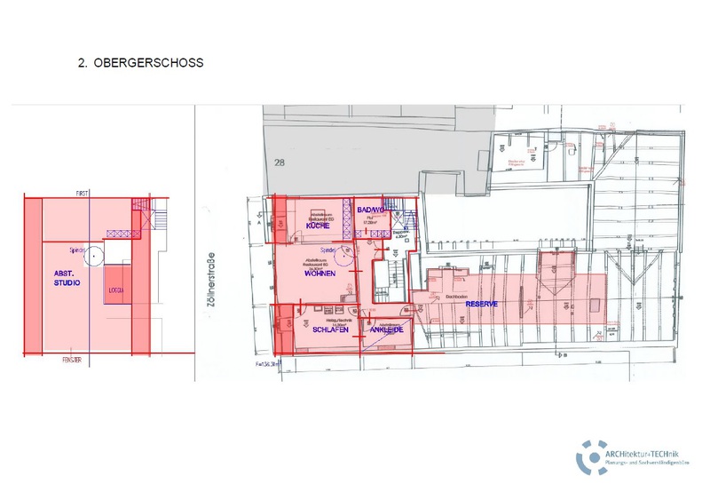
Studie: Entwicklung eines Nachnutzungskonzeptes für ein Baudenkmal in der Celler Innenstadt
Bilderübersich:
Neue Seite
Bauen im Bestand
Denkmalpflege/Sanierung
Kleiner Brunnen Rodenberg
Revitalisierung Landarbeiterhaus
Nutzungsänderung Scheune
Modernisierung einer Hofstelle
Modernisierung Gutshaus
Modernisierung Hofstelle
Einzeldenkmal Hannover
Baudenkmal Industrieschornstein
Studie Dachgeschosswohnung
Hannover Contiwerke Limmer
Fachwerkkonstruktionen
Greitjenhof Zweiständerhaus Krelingen
Revitalisierung einer Hofstelle: Generationenprojekt
Entwurf Historisches Mühlenhaus
Hofstelle bei Walsrode
Werkstatt am Fluss
Umsetzung eines hist. Treppenspeichers
Nutzungsänderung Werkstatt
Modernisierung Zweiständerhaus
Rekonstruktion Schloss Herrenhausen
Revitalisierung Landarbeiterhaus
Gläserner Verbindungsbau
Revitalisierung Pfarrwitwenhaus
Nutzungskonzept Z CE
Nutzungsänderung Telegrafenturm
Wohnbauten
Stadthäuser
http://gradientenbeton.eu
Haben Sie noch Fragen ?